Viviendas en acero para Ensidesa 1995

Arquitecto

Ramón Araujo Armero

Colaboradores

Jose Jurado Egea, Juan Hevia.

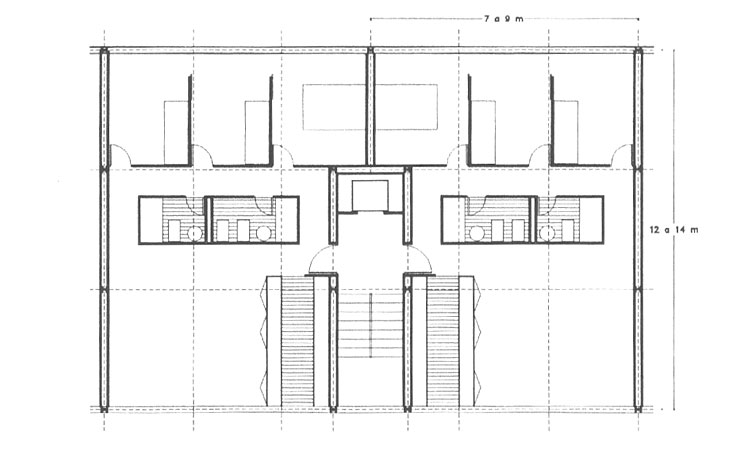
Concepto

Nos pidieron desarrollar un prototipo de edificio residencial en el que el acero mostrata sus ventajas para la construcción residencial. La solución fue una construcción integramente metálica, con la estructura emplazada en las paredes divisorias entre viviendas y las jácenas de borde, de gran canto, vistas formando el peto de la ventana corrida. El armazón de acero se prestaba muy bien a racionalizar las instalaciones.