Viviendas Sociales en Villarrubio Cuenca, 2012
Primer Premio en Concurso de Proyectos.

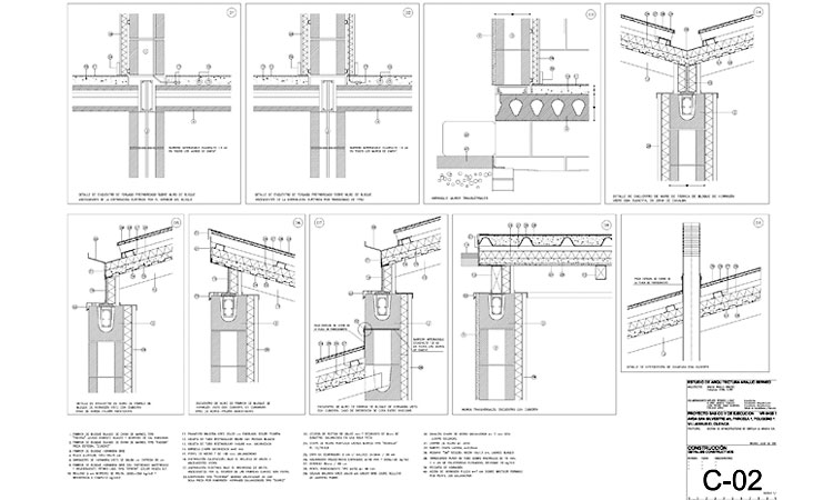
Construcción y Energía

La casa será poco más que unos muros paralelos y poco distanciados entre los que se establecen los patios y faldones inclinados, construidos con parecillos simplemente apoyados entre muros.

La casa patio de muros de carga aporta una impecable respuesta bioclimática. Es la opción por una filosofía conservativa, con amplios paños de muros compartidos que acumulan calor y defienden la casa de altas tempoeraturas.

Pero es sobretodo la red de patios la que permite una óptima relación de la casa con el ciclo solar, mediante su orientación múltiple y la ventilación que entre ellos se establece.