Piscinas Municipales de Pinto Madrid, 1997

Concepto

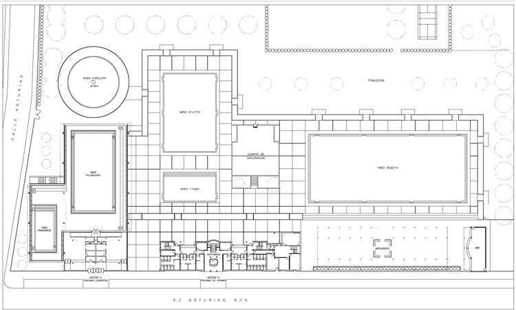
La localización ha cobrado en este proyecto una importancia decisiva. El proyecto incluye la reparación y rehabilitación del conjunto de piscinas al aire libre: vasos, playas e instalaciones.

El edificio se compone de dos recintos, diferenciados para cada vaso. Hemos pretendido construir una sencilla nave acristalada, poco intrusiva, muy abierta al paisaje, al tiempo que buscar la forma adecuada al problema de gasto energético y mantenimiento que un edificio como este implica. El proyecto es un basamento enterrado con un toldo.