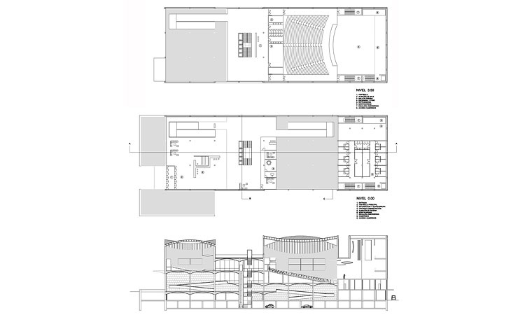
Palacio de Congresos y Exposiciones de Mérida 2001
Seleccionado Concurso de Ideas

Arquitectos

Ramón Araujo y Enrique Azpilicueta.

Colaboradores

M. Ángel sanz Vera.

Concepto

El neto volumen prismático se descomponía en espacios superpuestos de diferente escala, cubiertos por estructuras laminares formando bóvedas de arista regladas.