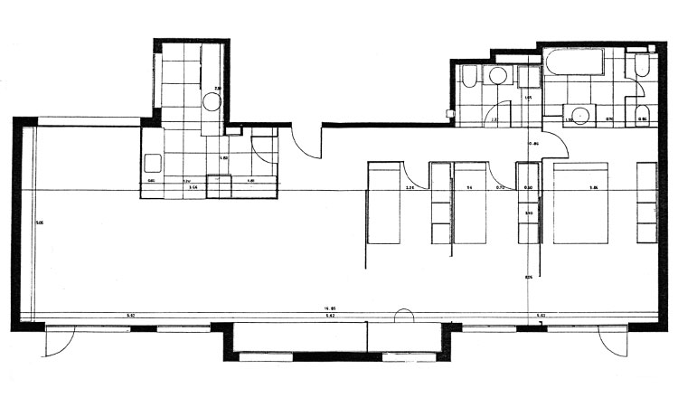
Vivienda en Madrid 1987

Arquitectos

Ramón Araujo Armero, Enrique Seco Fernández.

Concepto

La vivienda es una planta diáfana, con una tabiquería móvil formada por paneles metálicos de 3 cm. de espesor que permiten formar un espacio continuo.