Toggle navigation
Estudio Araujo
Proyectos
Sanidad
Vivenda
Escolar
Deportivo
Cultural
Administrativo
Urbanismo
Pintura
Escritos y Enseñanza
Libros
Artículos
Enseñanza
Alumnos
Contacto
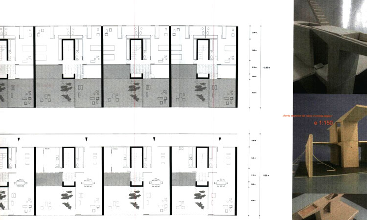
Le Corbusier
Inmueble Villa
Inicio
Escritos y Enseñanza
Alumnos
Le Corbusier: Inmueble Villa
Autores
Sergio Álvarez, Jose Manuel Arias, Sergio del Castillo (Construcción 4º, ETSAM).