Vivenda en Las Matas Madrid, 1993

Arquitecto

Ramón Araujo Armero

Colaborador

Fernando Gil Albert

Concepto

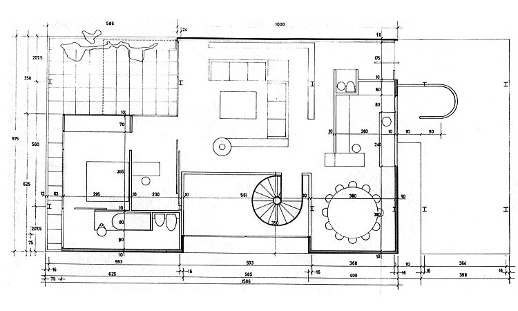
La vivienda es un prisma compacto elevado sobre el terreno y abierto a las cuatro orientaciones, en la que se recortan terrazas y dobles alturas. Los huecos son de gran tamaño, uno en la doble altura, cuadrado, y otro rasgado en los dormitorios.

La vivienda está resuelta integramente en acero, con estructura de nudos rígidos y paneles de chapa de acero en fachadas y cubiertas.

El proyecto lo finalizaron sus propietarios interpretando el proyecto.