Colegio de Educación Especial Toledo, Julio 2010
Concurso de Proyectos

Arquitecto

Ramón Araujo Armero.

Colaboradores

Francisco Serrano.

Concepto

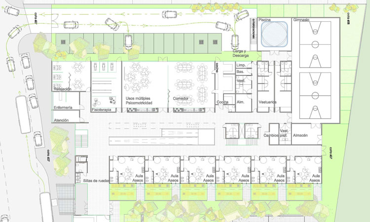
Un esquema lineal en torno a una espina longitudinal donde se situan los elementos de servicio y comunicaciones y divide el edificio en dos sectores, las aulas de grupo (orientadas a sudeste) y los locales comunes y aulas de actividades.

La forma nace como un sistema de faldones contrapuestos que se abren y pliegan a la luz buscando un espacio abierto al cielo y al aire. El edificio resulta así variado y doméstico, casi pintoresco.