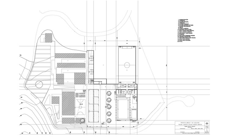
Colegio Rincón Añoreta Rincón de la Victoria, Málaga 2004.

Concepto

Conjunto formado por un edificio de aulas, el polideportivo y la piscina cubierta, además de los espacios exteriores. Objetivo importante de la ordenación es lograr una solución integrada del programa en la compleja topografía y en forma acorde a los edificios ya existentes.

El complejo se abre al inmenso paisaje al tiempo que los diferentes recintos tienen una óptima orientación solar.