Inmueble de viviendas en Alpedrete Madrid, 1997

Construcción e Instalaciones

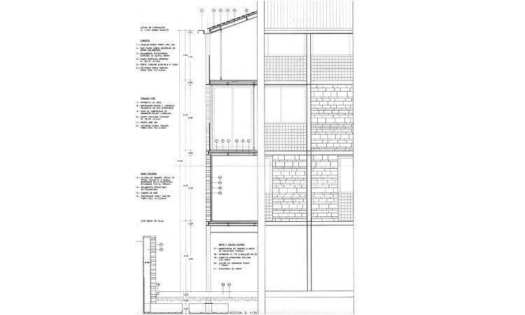
El edificio trata de relacionarse con naturalidad con la construcción tradicional de la Sierra de Madrid, con una expresión clara de sus sistemas constructivos.

Los cerramientos forman recuadros entre los pórticos metálicos vistos. Son de una hoja de sillares de granito con morteros de resina.

La chapa perfilada, además de en forjados, se emplea como cerramiento en las medianeras. Techos y divisiones son de tablero de yeso. La cubierta es de teja plana, clipada sobre el forjado de chapa de acero y el aislamiento.

Este sistema constructivo, sin albañilería, permite resolver las viviendas un poco como si fueran oficinas. Las instalaciones son registrables siempre y todo el proceso resulta mas técnico, sin que su coste sea superior al de la construcción convencional.