Viviendas Sociales en Alberca de Záncara Cuenca, 2013
Primer Premio en Concurso de Proyectos.

Construcción y Energía

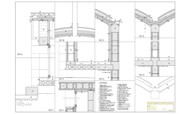
Nuestra idea es construir en la Mancha con sistemas murales, que conservan aún su lugar y tradición, racionalizándolos en lo posible. La fábrica de bloques queda vista al exterior y al interior. Los huecos son muy limpios, de suelo al zuncho de coronación.

Las instalaciones se distribuyen por el recrecido del suelo y el interior de la fábrica.
La cubierta es ventilada, con una cámara de aire bajo un tablero de chapa perfilada. Esto, junto al tratamiento de los huecos, la ventilación cruzada y el espesor de muros ha resultado en un excelente comportamiento de las viviendas frente al calor extremo.